- Client
- Client privé
- Superficie
- 4 200 pi² (390 m²)
- Année de construction
- 2019
- Entrepreneur général
- Norexco
- Prix
- Grands Prix du Design - Silver (2021)
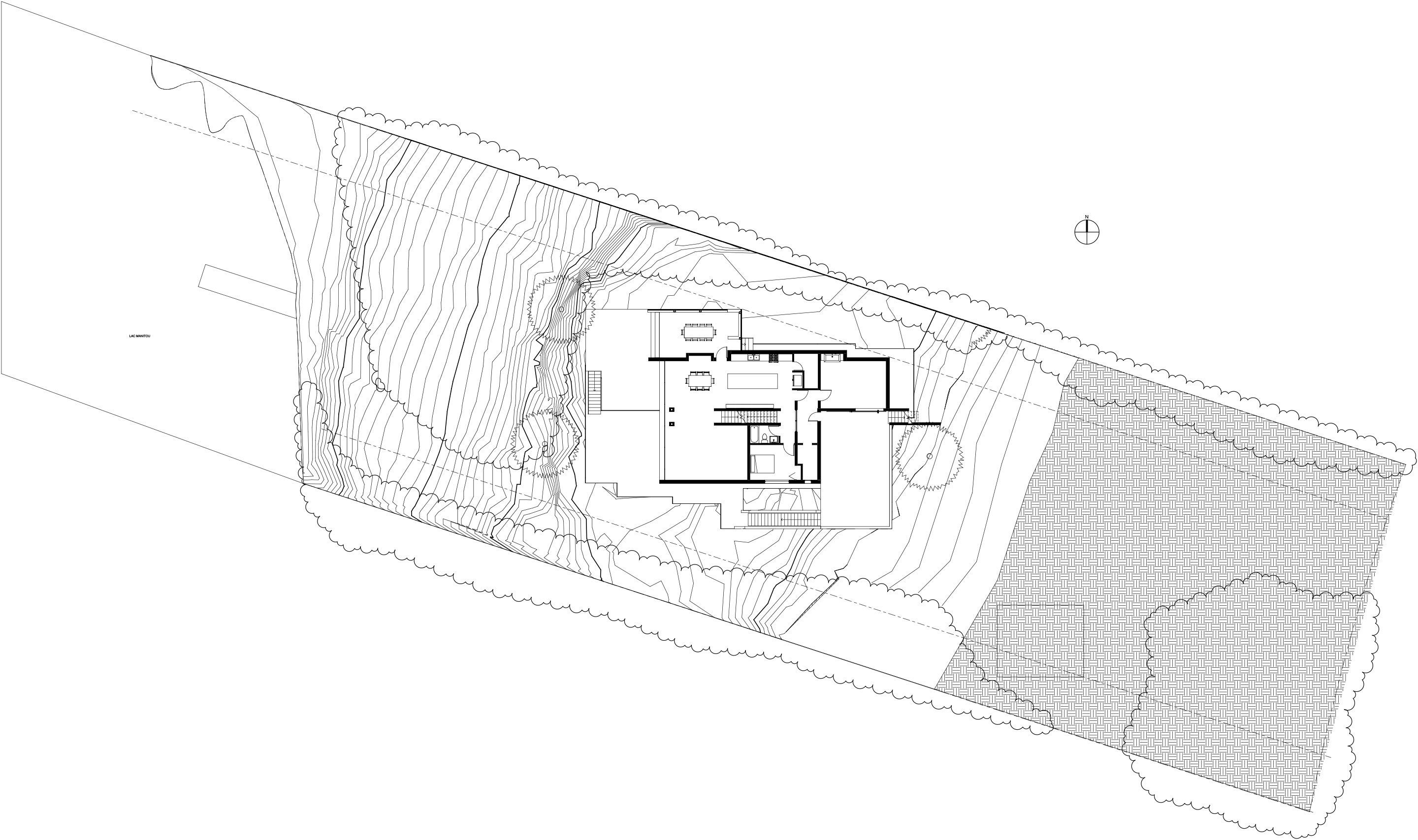
La maison au design modulaire unique a été créée en accord précis avec les plans de l'architecte. Construite avec des matériaux durables et locaux, elle est conçue de manière à générer une empreinte écologique quasi nulle. La fenestration abondante sert de vitrine à la beauté des lieux et laisse pénétrer un maximum de lumière naturelle, contribuant ainsi à une réduction maximale des coûts de chauffage et d’éclairage.



Le revêtement extérieur de couleur naturelle se fond dans le décor boisé et les accents noirs opaques ajoutent une touche artistique à la façade de la maison.





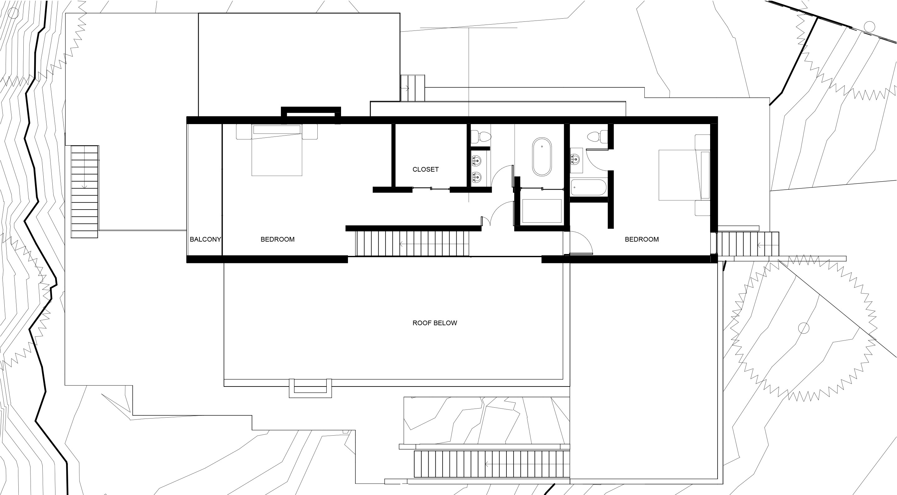
L’intérieur de la maison a été conçu de manière à ce que chaque membre de la famille ait son espace personnel. Le concept à aire ouverte du rez-de-chaussée comprend une grande cuisine et une salle à manger faisant office de point de rassemblement de même qu’un espace-salon confortable et une véranda trois-saisons afin d’apprécier la quiétude environnante.
Le bois, amplement utilisé à l’intérieur, ajoute une touche chaleureuse et accueillante. La terrasse abaissée au bord du lac a été conçue de manière à offrir une vue imprenable sur le paysage. Enfin, un atelier de peinture et de menuiserie complète le rez-de-chaussée.
L’architecte est en attente d’appliquer pour une certification LEED Or pour la conception de la maison





