

Le concept des « toilettes pour tous » est le droit de chaque personne, quel que soit son genre, ses besoins en matière d'accessibilité ou ses particularités personnelles, de se sentir en sécurité et bienvenue lorsqu'elle a besoin d'utiliser des toilettes publiques. En 2016, le projet de loi C-16 a modifié la Loi canadienne sur les droits de la personne et le Code criminel. Ce changement a ajouté l'identité de genre et l'expression de genre à la « liste des motifs de distinction illicite ». L'objectif est de protéger les personnes qui s'identifient comme telles et de reconnaître leur droit aux mêmes libertés et aux mêmes aménagements que toute autre personne. À mesure que la prise de conscience et la compréhension de l'importance de l'équité entre les genres se sont accrues, la demande de toilettes intégrant la dimension de genre dans les espaces publics a également augmenté.1 Plusieurs organismes récemment créés offrent de l'éducation et des outils qui appuient ce mouvement.
En outre, le besoin d'une plus grande accessibilité (accès et ergonomie) est devenu une priorité absolue dans la conception des toilettes publiques. À l'instar des toilettes neutres sur le plan du genre, l'objectif de l'accessibilité est de donner à chaque personne la liberté et la sécurité d'accéder aux espaces publics. Aux États-Unis, Stalled, une société d'experts-conseils, a répondu à la demande continue en offrant des conférences en libre accès, des publications et des lignes directrices en matière de conception – toutes élaborées au cours de plusieurs années de recherche. La société a pris en compte les débats sur les toilettes pour transgenres et élargi les discussions pour inclure l'égalité d'accès pour tous.
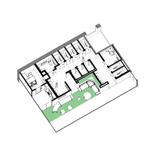
En raison de la demande croissante de « toilettes pour tous », l'équipe de Figurr a vu davantage de clients demander l'intégration ou la mise à jour des toilettes existantes pour des toilettes non genrées et accessibles. En général, la nouvelle configuration d'une toilette typique est divisée en trois zones – une série de cabines privées entièrement fermées dans des « stations communes pour faire sa toilette et se laver, et un salon qui transforme le couloir en un espace social animé ». Cette répartition de l'aménagement garantit la confidentialité et la sécurité des utilisateurs et facilite l'entretien continu. Cette configuration est essentielle pour créer un environnement plus inclusif et plus sûr pour tous.
Figurr collectif d'architectes a travaillé en étroite collaboration avec l'Université de Montréal pour rénover les toilettes du Pavillon J.-A.-De Sève, sur le campus de la montagne. Inspiré par Stalled et la nécessité d'un accès équitable, Figurr a travaillé avec l'Université pour créer des concepts qui s'alignent plus étroitement sur son mandat de placer l'équité, la diversité et l'inclusion au cœur de sa croissance.
Il existe généralement quatre catégories de design qui répondent aux questions typiques relatives à l'incorporation de « toilettes pour tous » dans un projet. Les questions que les clients posent fréquemment comprennent les suivantes :
- Comment la conception peut-elle réduire la transmission du bruit et l’intimité?
- Comment la conception contrôlera-t-elle les odeurs?
- Comment pouvons-nous gérer la sécurité de l'espace?
- Dans quelle mesure l'espace sera-t-il confortable?
Il est essentiel de répondre à ces questions dès le début du processus de conception pour assurer la réussite du projet. Grâce à la collaboration et à la pensée créative, Figurr est enthousiaste à l'idée d'aider l'Université de Montréal à créer une expérience universitaire plus inclusive.
Réduction de la transmission des bruits et intimité du lieu
L'une des principales préoccupations de la transmission des bruits est que le son peut facilement circuler entre les cabines de toilettes et entre les cabines et le couloir public. Une façon de remédier à ce problème est d'opter pour des cabines individuelles fermées avec des murs, plutôt que des cloisons de toilettes typiques. Les murs, qui vont du plancher au plafond, offrent un meilleur contrôle acoustique que les cloisons et améliore l’intimité du lieu. De plus, la porte pleine hauteur permettant d'accéder aux cabines individuelles possède des qualités acoustiques; avec des loquets et des ferme-porte appropriés, nous pouvons atténuer les problèmes liés à la transmission du son.
Certains matériaux peuvent également réduire la transmission du son dans les toilettes. Les architectes et les concepteurs peuvent intégrer des matériaux et des feuillages durables dans la conception des toilettes pour absorber le son. L'ajout de ces matériaux peut être très utile s'il y a une transition plus courte entre les espaces. En outre, s'il y a des préoccupations concernant la transmission du bruit entre les éviers et le couloir public, une solution consiste à utiliser un distributeur de papier recyclé plutôt que des sèche-mains électriques, car ceux-ci ont tendance à être plus bruyants et plus encombrants.

Contrôle des odeurs
Le contrôle des odeurs est l'un des problèmes clés de la conception des toilettes publiques. C'est un problème à la fois pour les utilisateurs des toilettes et pour les espaces publics environnants. L'une des façons les plus productives de répondre à cette préoccupation est d'ajouter une ventilation mécanique à chaque cabine pour éliminer les odeurs, puisque chaque cabine est fermée. Les nouvelles toilettes de l'Université de Montréal comprendront ce système de ventilation mécanique. Une autre intervention qu'il est possible de faire est d'ajouter des ferme-portes automatiques à chaque cabine, ce qui aide à limiter la propagation des odeurs. Il est important de noter que les toilettes non genrées ne comprennent pas d'urinoirs, qui sont l'une des principales sources d'odeurs dans les toilettes publiques.

Sécurité
La prise en compte de la sécurité des utilisateurs est un élément essentiel de la conception des « toilettes pour tous ». Toute personne qui a besoin d'utiliser des toilettes publiques devrait pouvoir le faire sans craindre pour sa sécurité, et sans avoir peur de subir de la discrimination ou du jugement.2 L'un des principaux principes de conception considère la circulation comme faisant partie du couloir public, ce qui réduit l'espace réservé aux toilettes. Puisqu'il n'y a pas de portes pour entrer dans la salle de bain, les utilisateurs auront également une vision claire des autres personnes dans l'espace, ce qui augmente le sentiment de sécurité en fournissant un espace ouvert duquel il est facile de sortir. L'amélioration de l'éclairage et l'ajout de capteurs de mouvement pour un éclairage automatisé favoriseront également la sécurité. Enfin, les toilettes non genrées sont faciles à entretenir et sécuritaires. Leurs espaces ouverts permettent au personnel d'accéder aux toilettes avec moins d'interruption de leurs visites régulières, et il n'y a aucun problème quant au genre du personnel qui fait le nettoyage et l'entretien.

Confort
Tout le monde doit se sentir en sécurité et à l'aise lorsqu'il utilise des toilettes publiques, peu importe le genre, les exigences en matière d'accessibilité ou les autres besoins spécifiques. La transmission des bruits, le contrôle des odeurs et la conception sécuritaire augmentent le confort global des utilisateurs. Une autre caractéristique de conception qui peut améliorer le confort est l'ajout d'aires de repos adjacentes aux toilettes. Une aire de repos offre une zone de socialisation qui amène plus de gens près des toilettes et diminue l'isolement, augmentant ainsi le sentiment de sécurité. Les toilettes de l'Université de Montréal sont adjacentes à un espace public où se trouvent les services aux étudiants. Le projet intègre également des murs verts dans cette zone. Cet ajout favorise tant le bien-être des étudiants que le contrôle du bruit. Cet endroit sert de zone d'attente, de point de rencontre et de zone de circulation générale.

Figurr croit que l'architecture peut être transformatrice; elle peut transformer la vie des gens qui l'utilisent. Dans le cas des concepteurs, les changements apportés à la Loi canadienne sur les droits de la personne et au Code criminel signifient que nous nous efforcerons d'inclure des toilettes non genrées et accessibles à tout le monde dans nos futurs projets dans le cadre de nos pratiques exemplaires. Cela signifie également que nous continuerons de promouvoir l'éducation et la discussion sur les « toilettes pour tous » avec les clients et le public. Pour nous, cela signifie s'assurer qu'avec chaque projet que nous concevons, tout le monde se sente bienvenu.
Notes de bas de page :
1. Wong, Herman et. al. “Genderless washrooms slow in coming to Ottawa,” The Capital Current. (2020) https://capitalcurrent.ca/genderless-washrooms-slow-in-coming-to-ottawa/ Accessed: January 31, 2022.
2. “Toilet Training: The basics of making your washrooms inclusive for everyone – Plus some resources to get you started!“ Eagle Human Rights Trust. (2022) https://egale.ca/awareness/inclusive-washrooms/. Accessed: January 31, 2022.
Ressources et références :
"Accessible Washrooms for All," Changing Places. (2020) http://changing-places.ca/ Accessed: January 31, 2022.
Chellew, Cara. "Washroom Advocacy," Toronto Public Space Committee. (n.d.) https://www.publicspace.ca/washroom_advocacy Accessed: January 31, 2022.
Foth, Zann. "Not fitting into the gender binary makes public washrooms my enemy," CBC First Person. (June 15, 2021) https://www.cbc.ca/news/canada/saskatoon/gendered-bathrooms-first-person-1.6058277 Accessed: January 22, 2022.
Hoang, Cindy Lam. "You go, I go, we all go: Toilet talk with Lezlie Lowe," Capital Current. (2019) https://capitalcurrent.ca/you-go-i-go-we-all-go-toilet-talk-with-lezlie-lowe/ Accessed: January 31, 2022.
Rhee, Minna. "Gender-neutral bathrooms gaining popularity across Canada," Global News. (January 13, 2019) https://globalnews.ca/news/5388958/gender-neutral-bathrooms-canada/ Accessed: January 31, 2022.
Stalled! (n.d.) https://www.stalled.online/ Accessed: January 22, 2022.